Project Overview

Bowman Ranch in Crossville, Tennessee

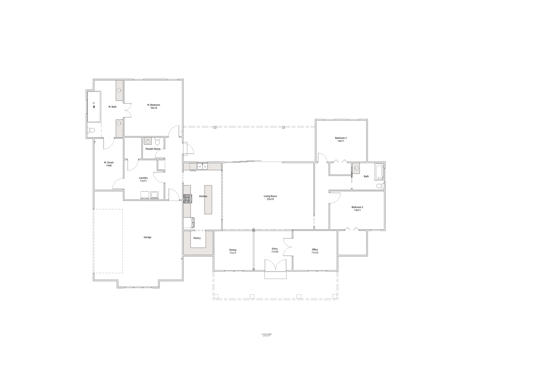
The Bowman Ranch reimagines the classic farmhouse with a bold, modern twist—blending timeless charm with cutting-edge design elements. This thoughtfully crafted residence spans approximately 2,600 ft² and features 3 bedrooms, 2.5 bathrooms, and a dedicated office space, offering both comfort and functionality for contemporary living.
Project Details

Location

Crossville, TN

Completion Year

2024

SQFT

2700

Key Features:

⎯Stamped concrete back porch
⎯Large fireplace with custom shelving
⎯Custom stained hardwood front door
⎯Cabinets to ceiling
⎯Farm house island with breakfast bar
⎯Accent walls
⎯Exposed Faux Beams
⎯Tongue and groove ceilings on front and back porch
Gliding Glass Backdoor

Client Goals:

Building a dream home that supports a farm lifestyle while offering space for family gatherings and multiple children. Large laundry space close to garage for mud room capability. Office space tucked away from children rooms for remote work
custom contractor home drawings

About This Project:

The Bowman Ranch reimagines the classic farmhouse with a bold, modern twist. This custom home spans about 2,600 square feet with 3 bedrooms, 2.5 bathrooms, and a dedicated office. East Tennessee Contractors are the home contractors that designed every space to support daily farm life while creating warm, welcoming rooms for family and friends. The result is a practical, beautiful home that fits Crossville, Tennessee living.


What the Home Needed To Do

Our clients wanted a dream home that works as hard as they do. They asked for room to host big family gatherings and space for multiple children to spread out. A large laundry next to the garage had to double as a mud room for boots, gear, and quick cleanups. Because remote work is part of their routine, they also needed an office tucked away from the kids’ rooms to keep calls quiet and focused.

Key Features:
  • Stamped concrete back porch
  • Large fireplace with custom shelving
  • Custom-stained hardwood front door
  • Cabinets to the ceiling for extra storage
  • Farmhouse island with breakfast bar
  • Accent walls for depth and character
  • Exposed faux beams for a rustic look without the weight
  • Tongue-and-groove ceilings on the front and back porches
  • Gliding glass back door that opens to outdoor living

Flow that Fits Farm Life

Life on a farm brings movement—people, pets, coats, and muddy shoes. We placed the garage entry near an oversized laundry/mud room so the mess stays contained. From there, the path leads right into the kitchen, making it easy to drop groceries and settle in. The farmhouse island with a breakfast bar anchors the kitchen and invites conversation while meals come together.

A wide opening connects the kitchen to the living room, where a large fireplace with custom shelving sets the tone for family time. The gliding glass back door draws in light and opens to the stamped concrete porch, turning weekend cookouts into an easy indoor-outdoor flow. At the other end of the home, the office sits away from the kids’ rooms, so work calls stay calm and productive.


Details Recommend by a Top Home Contractor

The Bowman Ranch balances durability with style. Stamped concrete on the back porch holds up to daily traffic and weather, while the tongue-and-groove porch ceilings add warmth that guests notice right away. Inside, cabinets that reach the ceiling maximize storage and keep counters clear—perfect for a busy family kitchen. Accent walls and exposed faux beams bring texture and character without adding structural weight. At the front door, a custom-stained hardwood slab creates a strong first impression and hints at the quality inside.


Built for Crossville, Tennessee

Homes in Crossville Tennessee need to handle four true seasons. Covered porches offer shade in the summer and shelter in the rain. The open plan brings in natural light during shorter winter days, while the fireplace turns family nights into a cozy routine. Materials were chosen for easy maintenance, so the house stays beautiful even after a long day outside.


Why This Project Stands Out

The Bowman Ranch shows how a thoughtful plan can simplify daily life. Smart circulation keeps dirt where it belongs. Storage meets real needs instead of creating clutter. Spaces open wide for gatherings, then tuck away for quiet focus. It’s the kind of balance a great home contractor aims for on every project: form that follows function, and craft that holds up.

Bowman Ranch is more than a pretty elevation—it’s a custom home designed around real routines and real people. If you’re planning a custom build in Crossville, Tennessee, and want a team that understands both quality and day-to-day practicality, East Tennessee Contractors is ready to help. As your local home contractor, we design and build homes that feel good, work hard, and welcome everyone in. Learn more about our process here.

Search Projects

Share:

Facebook
LinkedIn
Reddit
Threads

More Projects:

pikeville winery build by east tn contractors

Crow Creek Winery Build in Pikeville, TN

Step inside Crow Creek Winery in Pikeville Tennessee, a modern 2,000+ sq ft winery built by East Tennessee Contractors directly on the owner’s vineyard. This project features sloped high ceilings, epoxy concrete floors, a chiller room, loading dock, quarter wrap porch, and a rain water capture system that recycles and filters water for reuse on the farm.

View Portfolio »

Send Us A Message

Getting Started is Easy

Get in touch with East Tennessee Contractors to explore the possibilities, timelines, and craftsmanship that set us apart.

Scroll to Top